Badmintonhalle, Langnau am Albis

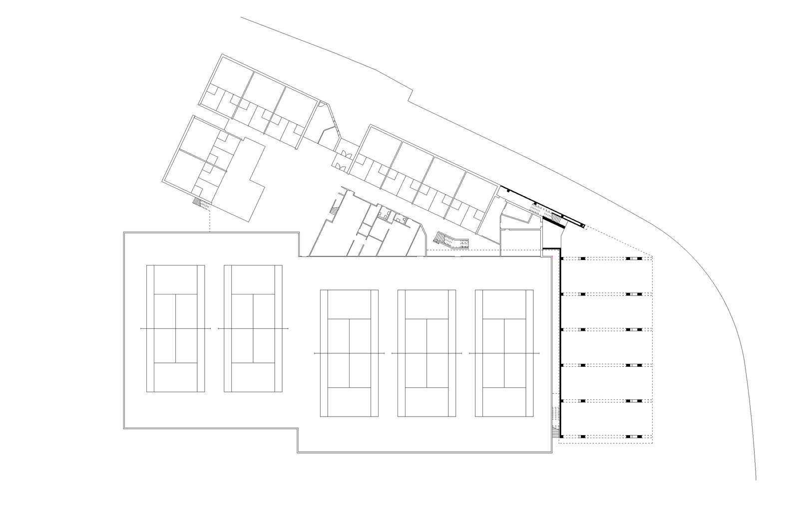
Ausgangslage des Entwurfs war die Bedingung, den Neubau über einem existierenden Parkplatz der Sportanlage zu erstellen, sowie die räumliche und betriebliche Anbindung an die bestehende Infrastruktur zu gewährleisten. Der überhohe Innenraum der Halle kontrastiert dabei das flache, zur Umgebung hin offene Parkfeld.

Das Tragen der Halle wird durch ein Raster von Stützen inszeniert, deren spezifische Form im Verbund mit der Decke einen steifen Sichtbetontisch bilden. Auf diesem ruht eine Stahlskelettkonstruktion, die einen stützenfreien Innenraum über den Spielfeldern aufspannt.

Die räumlichen Eigenschaften des Badmintonspiels werden so im Rhythmus der Tragstruktur sowie der polygonalen Geometrie des Hallenvolumens innen wie aussen erlebbar.

Auftraggeber : Sihlsports AG, Direktauftrag 2011
Ort : Langnau am Albis
Projektteam : in Zusammenarbeit mit Rolf Iseli, Jan Henrik Hansen, Ioanna Intze, Roman Zulauf, Vadim Unger, Armin Seltz
Status : fertiggestellt 2014
Photos : Roger Frei, Zürich