Sporthalle und Basisstufe, Münchenbuchsee

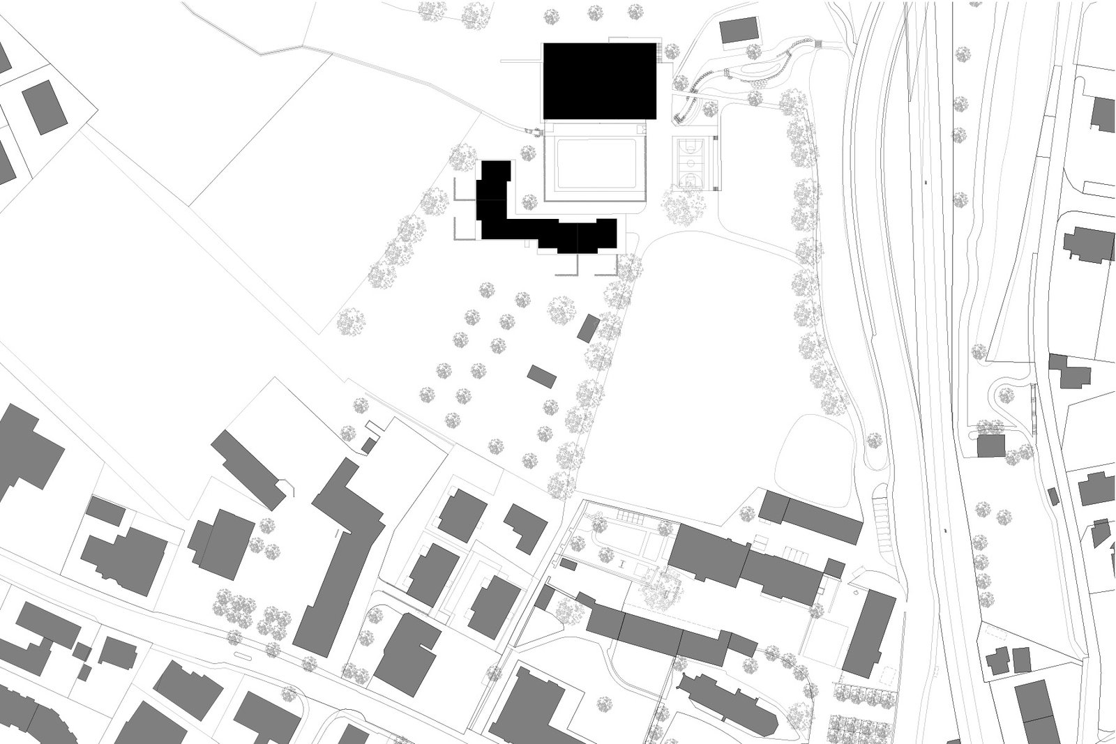
Die bestehende Schulanlage befindet sich in einem historisch gewachsenen, denkmalgeschützten Gebäudeensemble, das sowohl bezüglich Ort- wie Landschaftsbild einen anspruchsvollen Kontext bildet. Ziel ist es, die bestehende Anlage im Sinne der vorhandenen Qualitäten zu erweitern. Der Neubau wird somit als Fortsetzung des Bestandes in die Gesamtanlage integriert. Die Erweiterung der heilpädagogischen Schule Münchenbuchsee emanzipiert sich aber in situativer Hinsicht insofern vom Bestand, dass dieser in seinem historisch gewachsenen Kontext unberührt bleibt. Die neuen Gebäude für die Sporthalle inkl. Psychomotorikbereich und die vierklassige Basisschule bilden zusammen mit dem Schwimmbad sowie dem Rasen- und Allwetterplatz einen neuen baulichen Schwerpunkt der Heilpädagogischen Schule.

Auslober : Amt für Grundstücke und Gebäude des Kantons Bern, Projektwettbewerb im offenen Verfahren
Ort : Pädagogisches Zentrum für Hören und Sprache Münchenbuchsee
Projektteam : Jan Henrik Hansen, Reinhard Prikoszovich, Roman Zulauf, Pascale Akkerman (Xeros Landschaftsarchitektur), Iwan Besmer (Holzingenieur, Besmer Brunner GmbH)
Status : Wettbewerb abgeschlossen 2014
Situationsplan
Erdgeschoss
Obergeschoss
Geländeschnitt
Ansicht Nordwest
Ansicht Nordost
Ansicht Südwest
Ansicht Südost
Ansicht Südost