Boulangerie Artisanale, Gandiole

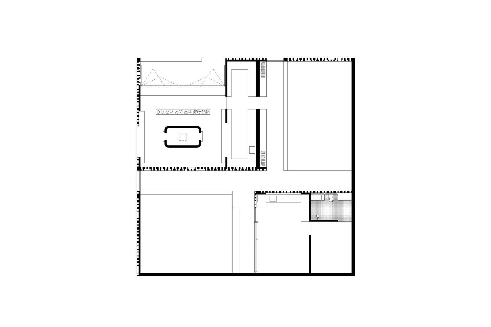
Ziel des Projekts ist die Schaffung einer besseren Infrastruktur für einen ambitionierten Bäcker, der inzwischen eine ganze Region mit seinem Brot beliefert. Das Gebäude nimmt sowohl Arbeits- und Verkaufsfläche der Bäckerei, wie auch die Wohnräume des Bäckers auf. Innerhalb der Mauer auf der quadratischen Parzellengrenze entstehen so zwei diagonale Zonen mit zugeordneten Höfen, die Raum bieten für die unterschiedlichen Tätigkeiten des Bäckers. Ein spezifisch geformter und vor Ort gegossener Stein bildet hierbei eine Schicht, die zwischen den verschiedenen Zonen vermittelt und gleichzeitig eine geeignete Abgrenzung zwischen ihnen schafft. Der Entwurf wurde in engem Dialog mit dem Bäcker entwickelt.

Auftraggeber : Aide Gandiole e.V., Direktauftrag 2013
Ort : Gandiole, Sénégal, Afrika
Projektteam : Jan Henrik Hansen, Rolf Iseli, Ioanna Intze
Status : Ausführung 2015
Schwarzplan
Erdgeschoss
Schnitt
Schnitt
Ansicht Nord