Ein-Wand-Haus, München

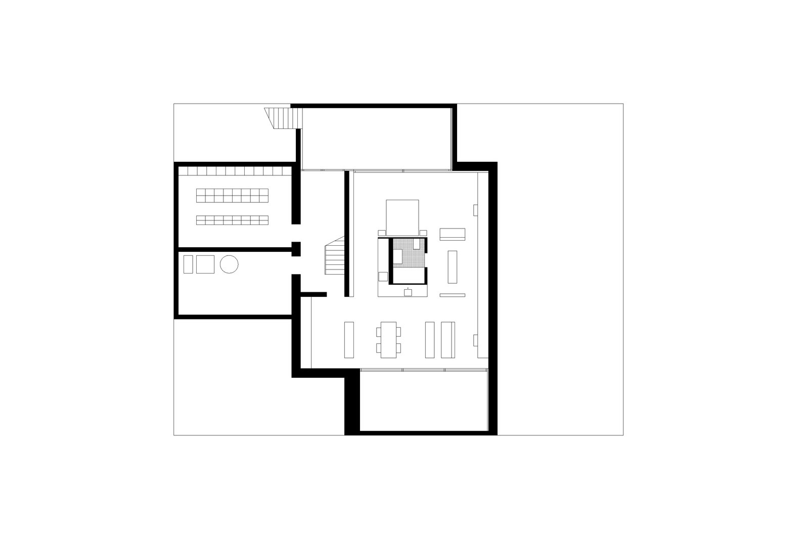
Das Grundstück ist von relativ nah stehenden Nachbarbauten geprägt. Um dennoch einen angemessenen Grad der Privatheit zu erreichen, interpretiert der Entwurf das Element “Mauer“ als Kontinuum, womit eine einzige Mauer das wesentliche raumdefinierende Element des Projekts wird. Im Erdgeschoss definiert sie als an die Grundstücksgrenze versetzte Fassade den Garten und macht ihn zu Teil des Wohnraums, welcher dadurch trotz der nahen Nachbarschaft grosszügig verglast werden kann. Die Mauer begleitet den Bewohner ins Haus und entlang der Treppe ins privatere Obergeschoss, das sie anschliessend als Aussenwand umfasst.

Auftraggeber : privat, Direktauftrag 2011
Ort : Königsberger Strasse, München
Projektteam : Jan Henrik Hansen, Ioanna Intze, Stelios Zenieris, Roman Zulauf, Rolf Iseli
Status : Bauprojekt 2013
Schwarzplan
Obergeschoss
Erdgeschoss
Untergeschoss
Längsschnitt
Querschnitt